Walla Walla, WA 99362
Bed
Bath
0 SqFt
10 DOM
Built: 1975
$1,295,000
$1295000
Bed
Bath
0 SqFt
10 DOM
Built: 1975
CEO & Founder
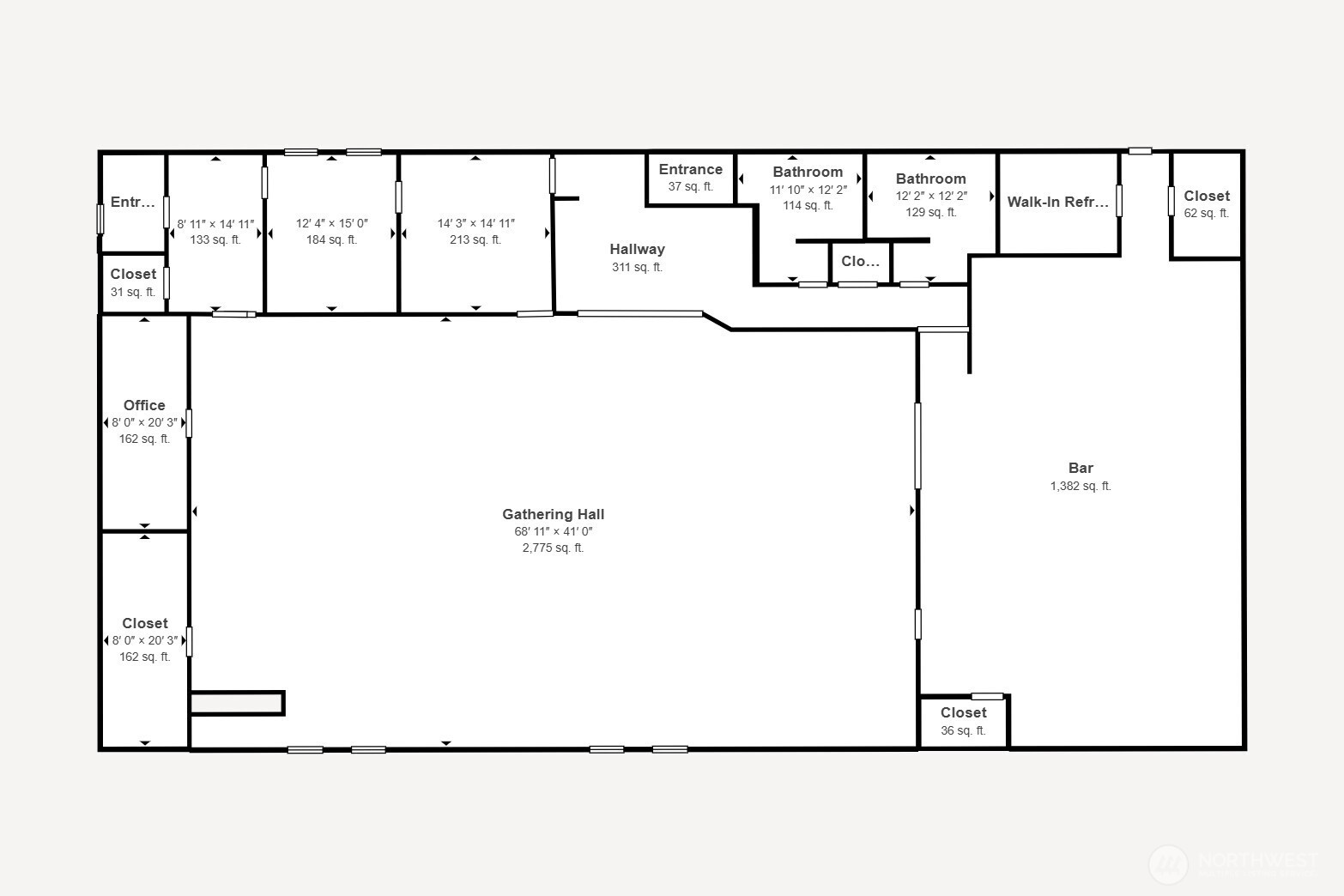
(650)533-3259In the heart of Walla Walla Valley this commercial property is located at the corner of Rose Street and Colville Street, just blocks from Highway 12 access. This 6,728± SF commercial property offers excellent visibility, strong surrounding co-tenancy, and ample off-street parking—an uncommon advantage in the downtown core. The building features a spacious dining area that can be divided into three sections with built-in accordion partitions, a kitchen, and a full bar with generous seating. Neighboring businesses include TMACS Restaurant, The Mill specialty food store, and the Marcus Whitman Hotel. The flexible layout and strategic location make this property ideal for a variety of uses or for redevelopment into multiple tenant suites.
Listing Provided Courtesy of Travis Watts, Coldwell Banker Walla Walla
NWM2452205
Commercial Industrial
10 DOM
0.33 acres
0
1975
Commerc
Walla Walla
Commercial Sale
Commercial Industrial
Listing Provided Courtesy of Travis Watts, Coldwell Banker Walla Walla
Kasamestates data last checked: Dec 25, 2025 03:34 | Listing last modified Nov 17, 2025 17:09,
Source:
Download our Mobile app
0
Composition
60 - Comm Bldg Und 10K
1975
Concrete Ribbon
Brick
Public
Sewer Connected
80
Cash Out, Conventional
11-07-2025
10
10
Cash Out, Conventional
$1,295,000
$1,295,000
Nov 17, 2025 17:09
Listing courtesy of Coldwell Banker Walla Walla.
The content relating to real estate for sale on this site comes in part from the IDX program of the NWMLS of Seattle, Washington.
Real Estate listings held by brokerage firms other than this firm are marked with the NWMLS logo, and
detailed information about these properties include the name of the listing's broker.
Listing content is copyright © 2025 NWMLS of Seattle, Washington.
All information provided is deemed reliable but is not guaranteed and should be independently verified.
Kasamestates data last checked: Dec 25, 2025 03:34 | Listing last modified Nov 17, 2025 17:09.
Some properties which appear for sale on this web site may subsequently have sold or may no longer be available.
CEO & Founder
(650)533-3259In the heart of Walla Walla Valley this commercial property is located at the corner of Rose Street and Colville Street, just blocks from Highway 12 access. This 6,728± SF commercial property offers excellent visibility, strong surrounding co-tenancy, and ample off-street parking—an uncommon advantage in the downtown core. The building features a spacious dining area that can be divided into three sections with built-in accordion partitions, a kitchen, and a full bar with generous seating. Neighboring businesses include TMACS Restaurant, The Mill specialty food store, and the Marcus Whitman Hotel. The flexible layout and strategic location make this property ideal for a variety of uses or for redevelopment into multiple tenant suites.