$399000
Bed
Bath
1304 SqFt
1 DOM
Built: 1940
CEO & Founder
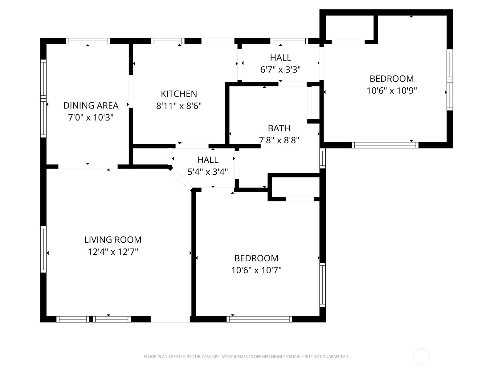
(650)533-3259Charming, refreshed, & full of possibility, this thoughtfully updated duplex blends classic character with meaningful modern upgrades in one of Walla Walla’s most coveted neighborhoods. Tree lined streets and close in convenience create a setting that feels both timeless and practical, while the property itself offers the rare combination of warmth, flexibility, and income potential. Whether you are an investor, first time buyer, or exploring house hacking, the layout invites opportunity while still feeling like home.Inside, the spaces have been carefully reimagined with updated kitchens and bathrooms, new luxury vinyl plank flooring, & all new appliances including washer/dryer in each unit. Fresh interior and exterior paint create a cohesive, move in ready feel, while vinyl double pane windows bring in natural light and improved efficiency. Major system upgrades including newer roof, new electrical, updated plumbing, and high efficiency mini split systems provide confidence and long term value. The lower level apartment features a legal egress window, expanding livability and rental appeal, and new siding outside enhances both durability and curb appeal. The result is a turnkey property where the heavy lifting has already been done. A smart, polished investment w/ immediate usability, reduced maintenance, & strong potential for owner occupancy and income from day one. Think you've been priced out of the market? This could be your foot in the door. Call or text for details.
Listing Provided Courtesy of Sam Galano, Berkshire Hathaway HS WW
NWM2501103
Multi Family
1 DOM
2178 SqFt
1304
1940
Residen
Walla Walla
Green Park Elem
Buyer To Verify
Walla Walla Hig
Residential Incom
Multi Family
Listing Provided Courtesy of Sam Galano, Berkshire Hathaway HS WW
Kasamestates data last checked: Apr 02, 2026 09:04 | Listing last modified Apr 01, 2026 23:46,
Source:
Download our Mobile app