Colville, WA 99114
2 Bed
0.5 Bath
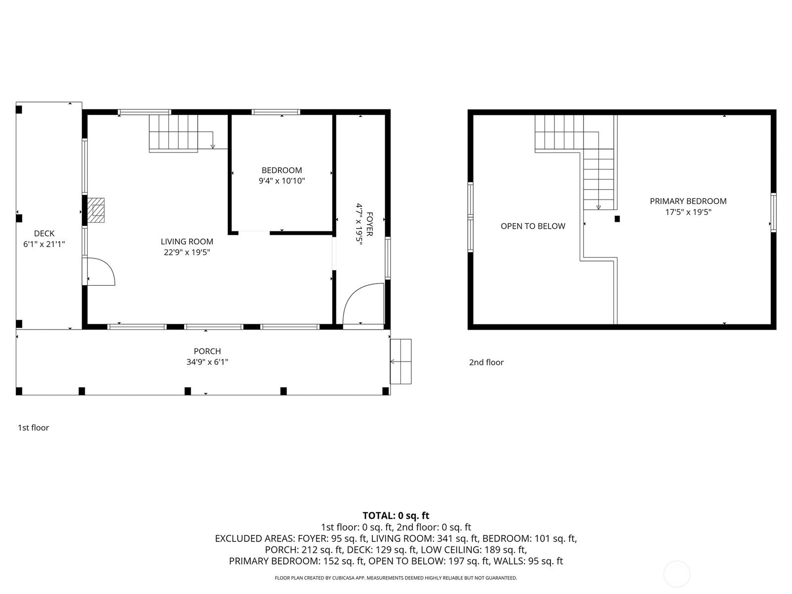
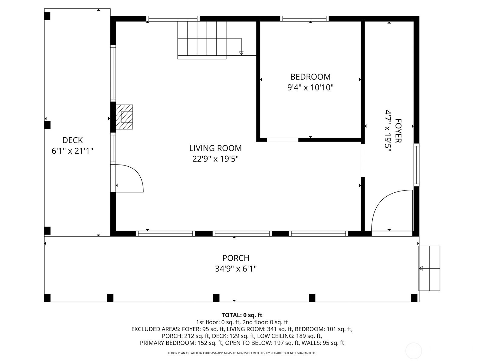
970 SqFt
1 DOM
Built: 2025
$289,900
$289900
2 Bed
0.5 Bath
970 SqFt
1 DOM
Built: 2025
CEO & Founder
(650)533-3259Imagine a sky full of mountain views from your wrap-around covered deck overlooking wide open pastures. Located at the end of the road and behind 2 gates, this newly constructed cabin is unfinished but the shell has everything you need to create your own mountain retreat -- steep metal roof, cedar timber posts, open A-frame design with loft, and big peak windows that pull in views of 49 Degrees North and the surrounding ranges. Electric is wired in for a generator and power is at the property line. The 22 acres runs from open meadow into mixed ponderosa, Douglas fir, and aspen draws, with timber company land off the back boundary and national forest beyond. Drilled well on site, but condition unknown. Shipping container included. Cisterns located uphill from cabin for water storage.
Listing Provided Courtesy of Ken Barcus, Ken Barcus Realty
NWM2499774
Single Family Residence
1 DOM
2
22.83 acres
0.5
970
2025
Stevens
Residential
Single Family Residence
Listing Provided Courtesy of Ken Barcus, Ken Barcus Realty
Kasamestates data last checked: Mar 31, 2026 03:26 | Listing last modified Mar 30, 2026 22:05,
Source:
Download our Mobile app
970
2
0
1
0.5
Metal
11 - 1 1/2 Story
2025
None
None
Poured Concrete
Water Heater
Cement Planked
Well Needed
None
728
Cash, Conventional
03-30-2026
1
1
Cash, Conventional
$289,900
$289,900
Mar 30, 2026 22:05
Listing courtesy of Ken Barcus Realty.
The content relating to real estate for sale on this site comes in part from the IDX program of the NWMLS of Seattle, Washington.
Real Estate listings held by brokerage firms other than this firm are marked with the NWMLS logo, and
detailed information about these properties include the name of the listing's broker.
Listing content is copyright © 2026 NWMLS of Seattle, Washington.
All information provided is deemed reliable but is not guaranteed and should be independently verified.
Kasamestates data last checked: Mar 31, 2026 03:26 | Listing last modified Mar 30, 2026 22:05.
Some properties which appear for sale on this web site may subsequently have sold or may no longer be available.
CEO & Founder
(650)533-3259Imagine a sky full of mountain views from your wrap-around covered deck overlooking wide open pastures. Located at the end of the road and behind 2 gates, this newly constructed cabin is unfinished but the shell has everything you need to create your own mountain retreat -- steep metal roof, cedar timber posts, open A-frame design with loft, and big peak windows that pull in views of 49 Degrees North and the surrounding ranges. Electric is wired in for a generator and power is at the property line. The 22 acres runs from open meadow into mixed ponderosa, Douglas fir, and aspen draws, with timber company land off the back boundary and national forest beyond. Drilled well on site, but condition unknown. Shipping container included. Cisterns located uphill from cabin for water storage.