$1175000
Bed
Bath
1192 SqFt
1 DOM
Built: 1955
CEO & Founder
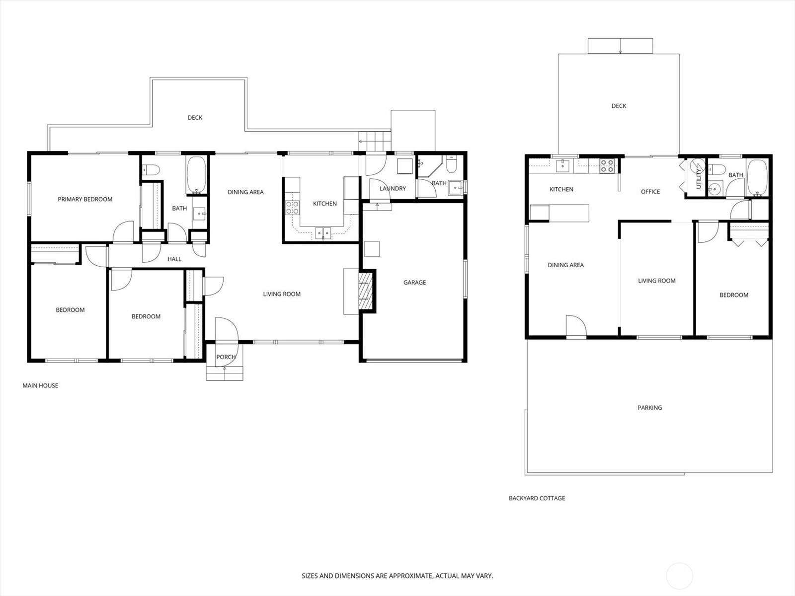
(650)533-3259Two private homes on one large lot in rare Dual-Living Opportunity in Heart of Edmonds! In the Front house you'll discover a meticulously updated mid-century rambler built in 1955. This 1,192 sqft home shines w/ 3 bdrms, 1.75 bthrms & attached 280 sq.ft. garage. Enjoy casual living w/ the lvng rm open to the dnng rm that is just off of the updated ktchn. Lg picture windows bring in light from West facing windows, while the wood burning fp is perfect for colder days. Upgrades are countless: new furnace, fresh paint inside & out, new LPV flooring, carpet, furnace, oil tank decomm, professionally & so much more! Outside enjoy the large private deck that faces lovely level, private & spacious backyard. Tucked away on the back of the property is the completely updated 22511 1/2 with 768 sqft. Built in 1960 w/ 1 bd & 1 bthrm. In this turn-key gem, you'll find open floor plan, more picture windows facing private, level lush views of mature landscaping, new ktchn, electrical panel, flooring, painted inside & out, plus huge private back deck. Short term rental, MIL or tenant ready or perfect home detached office. Both units boast their own dedicated parking, professional landscaping, & private decks for seamless indoor-outdoor living. Located in coveted Westgate neighborhood, minutes from the vibrant Edmonds waterfront. Live or rent to capitalize on a high-yield short/long term rental—the possibilities are endless! Seller procured inspection and sewer scope available upon request.
Listing Provided Courtesy of Sunshine McArthur, Windermere RE Greenwood
NWM2498436
Multi Family
1 DOM
0.39 acres
1192
1955
See Rem
Snohomish
Westgate ElemWg
College Pl Mid
Edmonds Woodway
Residential Incom
Multi Family
Listing Provided Courtesy of Sunshine McArthur, Windermere RE Greenwood
Kasamestates data last checked: Mar 27, 2026 13:56 | Listing last modified Mar 27, 2026 16:47,
Source:
Sat, Mar 28th, 1PM to 3PM
Sun, Mar 29th, 2AM to 4PM
Download our Mobile app