12525 ADMIRALTY WAY

Everett, WA 98204

  • Bed

  • Bath

  • 0 SqFt

  • 96 DOM

  • Built:

  • Status: Active

$2,200,000

X

12525 ADMIRALTY WAY

Everett 98204

$2200000

  • Bed

  • Bath

  • 0 SqFt

  • 96 DOM

  • Built:

  • Status: Active

Srinivas Kasam

CEO & Founder

(650)533-3259

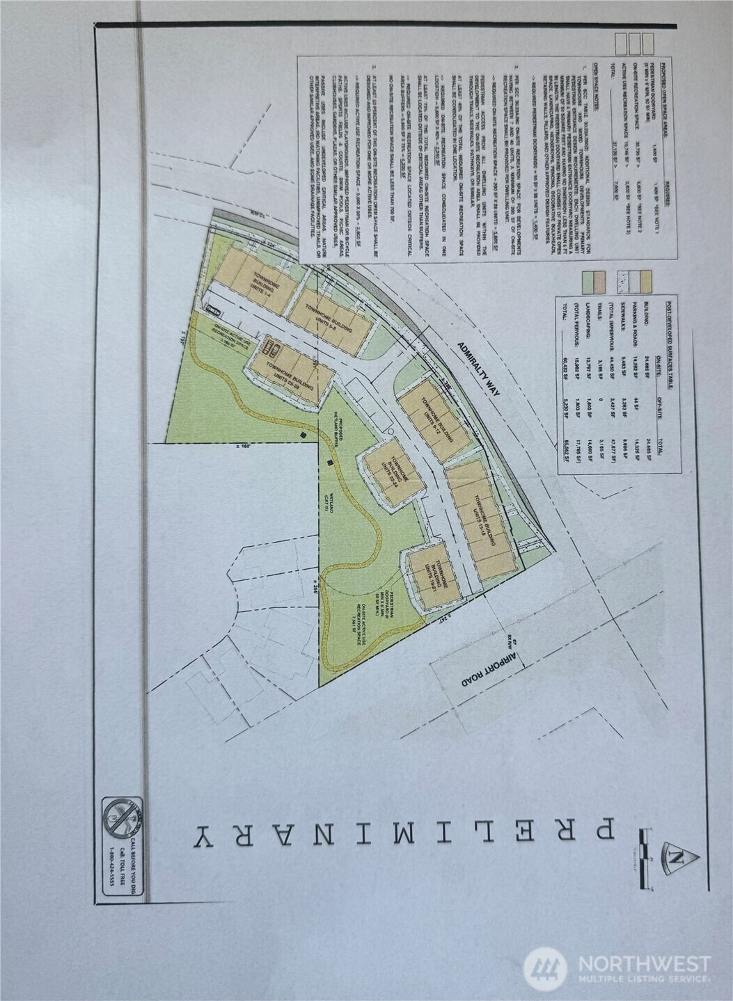
Building /Developing opportunity! This 1.73-acre project consists of two lots that are being sold together. Preliminary engineering has been started for a 28 unit-townhome project, with a green belt that would complement the park like setting of the property. Nestled on the corner of Admiralty Way and Airport Road this property is just minutes from Interstate 5 and shopping centers as well as be located within walking distance of the main bus line. All additional information is included in the supplements.

Download our Mobile app

Similar Properties

$149,000

  • Bed

  • Bath

  • 0 SqFt

  • 7 DOM

  • 8201 5th Avenue W, Everett, 98204

$1,700,000

  • Bed

  • Bath

  • 0 SqFt

  • 16 DOM

  • 2908 122nd Street SW, Everett, 98204

$1,890,000

  • Bed

  • Bath

  • 0 SqFt

  • 41 DOM

  • 1807 112th Street SW, Everett, 98204

$560,000

  • Bed

  • Bath

  • 0 SqFt

  • 56 DOM

  • 3511 Everett Avenue, Everett, 98204