$799950
Bed
Bath
3136 SqFt
1 DOM
Built: 1890
CEO & Founder
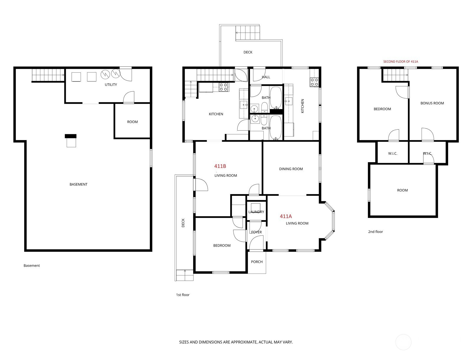
(650)533-32592 Houses on 1 Parcel and giving you 3 RENTAL UNITS. [Unit 411A and 411B]White Home in front has 2 UNITS w/ newer roof; pex plumbing, electrical, hardwood, and newer carpeting; and new double pane vinyl windows. UPDATED kitchens w/ stainless appliances. High ceilings and old-world charm create dramatic and easily rented homes. [Unit 409] DETACHED home in the rear w/ alley access offers the opportunity for a well-rounded investment; even multi-generational living. Garage w/ 2 separate stalls and alley access allows for plenty of parking. All units have been easily rented and have never had a problem filling with great residents. GREAT location for commuters and proximate to UW TACOMA, downtown, Tacoma Dome, HJwy 705, I-5, and all area services - north and south. A great place for your investment portfolio with an up-and-coming area.
Listing Provided Courtesy of Michael Morrison, Morrison House Sotheby's Intl
NWM2507125
Multi Family
1 DOM
6499.15 SqFt
3136
1890
Residen
Pierce
Buyer To Verify
Buyer To Verify
Buyer To Verify
Residential Incom
Multi Family
Listing Provided Courtesy of Michael Morrison, Morrison House Sotheby's Intl
Kasamestates data last checked: Apr 14, 2026 04:19 | Listing last modified Apr 14, 2026 03:49,
Source:
Download our Mobile app