11325 178th Avenue Ct E

Bonney Lake, WA 98391

  • 5 Bed

  • 2.5 Bath

  • 2913 SqFt

  • 1 DOM

  • Built: 2006

  • Status: Active

$769,900

X

11325 178th Avenue Ct E

Bonney Lake 98391

$769900

  • 5 Bed

  • 2.5 Bath

  • 2913 SqFt

  • 1 DOM

  • Built: 2006

  • Status: Active

Srinivas Kasam

CEO & Founder

(650)533-3259

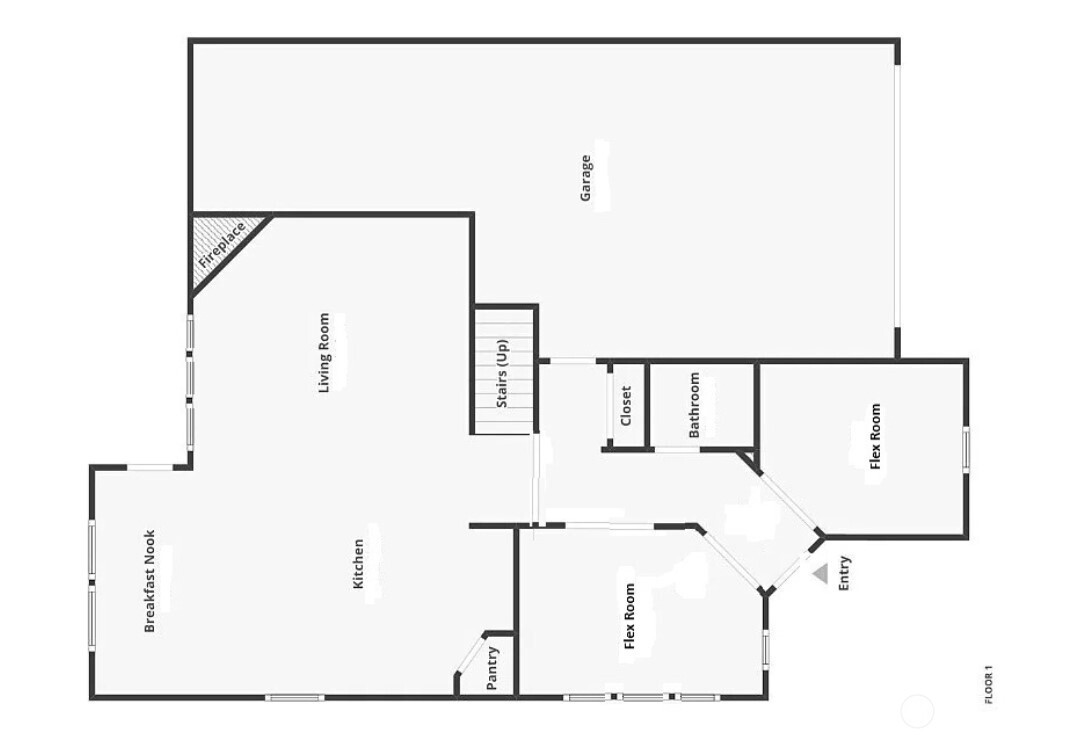
Spacious, versatile, and beautifully refreshed, this 5 bedroom + 2 flex room home with a rare 3 car garage stands out in the desirable Ashton Woods neighborhood of Bonney Lake. Offering 2,913 sq ft and 2.5 baths, this move-in ready home provides the space and flexibility today’s buyers are looking for. The functional layout features real hardwood floors, an open concept living area, formal dining space, and a well-appointed kitchen with double oven, stainless steel appliances, and abundant cabinetry for exceptional storage. The kitchen nook and flexible floor plan make everyday living and entertaining effortless. With five true bedrooms plus two dedicated flex rooms, this home offers seven separate rooms to grow, host, or comfortably work from home. The spacious primary suite includes dual vanities, soaking tub, and walk-in closet. Recent updates include brand new carpet, fresh interior and exterior paint, new garage door (installed 3/5/26), and newer water heater, allowing the next owner to move in with confidence. Enjoy a fully fenced backyard with stamped concrete patio and covered outdoor space ideal for entertaining or relaxing year-round. Surrounded by neighborhood amenities including a dog park, multiple playgrounds, and basketball court, this home combines everyday comfort with convenient recreation. Well maintained, thoughtfully updated, and offering exceptional versatility, this Ashton Woods home is ready for its next chapter

Download our Mobile app

Similar Properties

$675,000

  • 3 Bed

  • 2.5 Bath

  • 2148 SqFt

  • 1 DOM

  • 12910 187th Avenue E, Bonney Lake, 98391

$545,000

  • 3 Bed

  • 2.5 Bath

  • 1550 SqFt

  • 1 DOM

  • 18815 Eagle Ridge Drive E, Bonney Lake, 98391

$1,659,000

  • 3 Bed

  • 2.5 Bath

  • 3090 SqFt

  • 1 DOM

  • 18201 17th Street E, Lake Tapps, 98391

$740,985

  • 2 Bed

  • 2 Bath

  • 1928 SqFt

  • 1 DOM

  • 14830 205th Avenue Ct E #2500, Bonney Lake, 98391