Lakewood, WA 98498
4 Bed
3 Bath
3572 SqFt
1 DOM
Built: 1978
$1,899,000
$1899000
4 Bed
3 Bath
3572 SqFt
1 DOM
Built: 1978
CEO & Founder
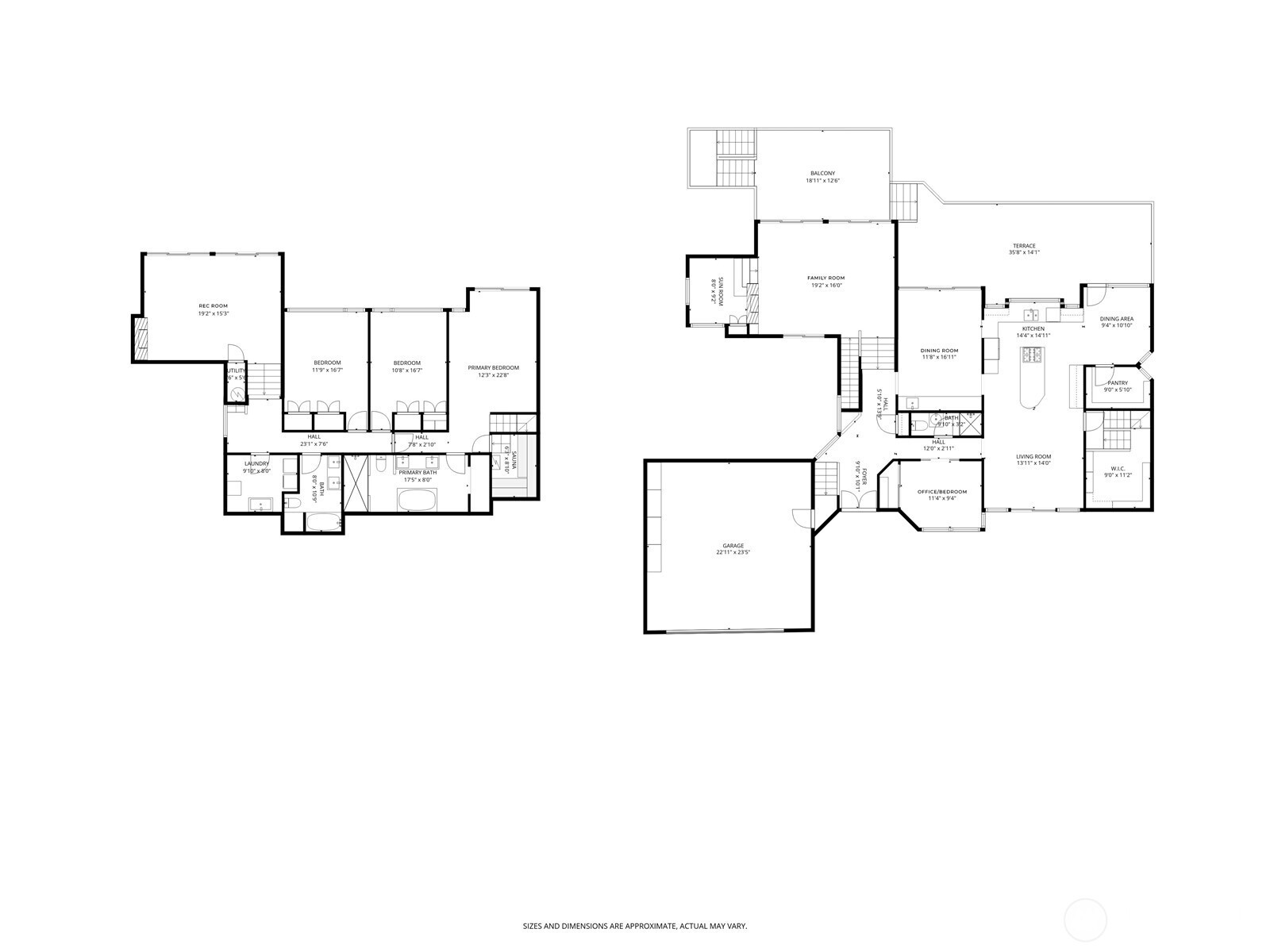
(650)533-3259Remodeled home on about 100 feet of historic LAKE STEILACOOM, a rare find on OPEN WATER. This unique and architecturally significant home by Alan Liddle was recently renovated w/ impeccable style and taste. 4 Bedrooms with 2.75 baths. Massive NEW DOCK; about 550 sq feet. Living areas have walls of glass overlooking the lake; Living room w/ gas FP; dining room w/ buffet; kitchen w/ island; nook and large pantry; sitting area. LAKESIDE Primary suite w/spa-like bath; custom tile work; marble; towel warmer and SAUNA. Lower-level rec room w/ new gas fireplace. New stainless steel DOG WASH. MASSIVE large new deck w/ outdoor vinyl for carefree living. Added value comes from new custom millwork, new carpet, new systems like HVAC (AIR CONDITIONING), newer ROOF, and new windows, freshly painted. Over HALF ACRE gives room for extra parking or even a possible sports court! This is a rare blend of location on the lake, updates, and floor plan. A rarity in the market.
Listing Provided Courtesy of Michael Morrison, Morrison House Sotheby's Intl
NWM2504131
Single Family Residence
1 DOM
4
0.6 acres
3
3572
1978
Pierce
Idlewild Elem
Hudtloff Mid
Clover Park Hig
Residential
Single Family Residence
Listing Provided Courtesy of Michael Morrison, Morrison House Sotheby's Intl
Kasamestates data last checked: Apr 10, 2026 03:10 | Listing last modified Apr 10, 2026 04:36,
Source:
Download our Mobile app
3572
2/Gas
4
2
0
3
Composition
16 - 1 Story w/Bsmnt.
1978
Finished
Finished
Poured Concrete
Bath Off Primary, Dbl Pane/Storm Window, Dining Room, Fireplace, Pantry, Sauna, Security System, Vau
Wood
Public
Sewer Connected
14721
Cash, Conventional
04-09-2026
1
1
Cash, Conventional
$1,899,000
$1,899,000
Apr 10, 2026 04:36
Listing courtesy of Morrison House Sotheby's Intl.
The content relating to real estate for sale on this site comes in part from the IDX program of the NWMLS of Seattle, Washington.
Real Estate listings held by brokerage firms other than this firm are marked with the NWMLS logo, and
detailed information about these properties include the name of the listing's broker.
Listing content is copyright © 2026 NWMLS of Seattle, Washington.
All information provided is deemed reliable but is not guaranteed and should be independently verified.
Kasamestates data last checked: Apr 10, 2026 03:10 | Listing last modified Apr 10, 2026 04:36.
Some properties which appear for sale on this web site may subsequently have sold or may no longer be available.
CEO & Founder
(650)533-3259Remodeled home on about 100 feet of historic LAKE STEILACOOM, a rare find on OPEN WATER. This unique and architecturally significant home by Alan Liddle was recently renovated w/ impeccable style and taste. 4 Bedrooms with 2.75 baths. Massive NEW DOCK; about 550 sq feet. Living areas have walls of glass overlooking the lake; Living room w/ gas FP; dining room w/ buffet; kitchen w/ island; nook and large pantry; sitting area. LAKESIDE Primary suite w/spa-like bath; custom tile work; marble; towel warmer and SAUNA. Lower-level rec room w/ new gas fireplace. New stainless steel DOG WASH. MASSIVE large new deck w/ outdoor vinyl for carefree living. Added value comes from new custom millwork, new carpet, new systems like HVAC (AIR CONDITIONING), newer ROOF, and new windows, freshly painted. Over HALF ACRE gives room for extra parking or even a possible sports court! This is a rare blend of location on the lake, updates, and floor plan. A rarity in the market.