$389000
1 Bed
1 Bath
448 SqFt
1 DOM
Built: 2016
CEO & Founder
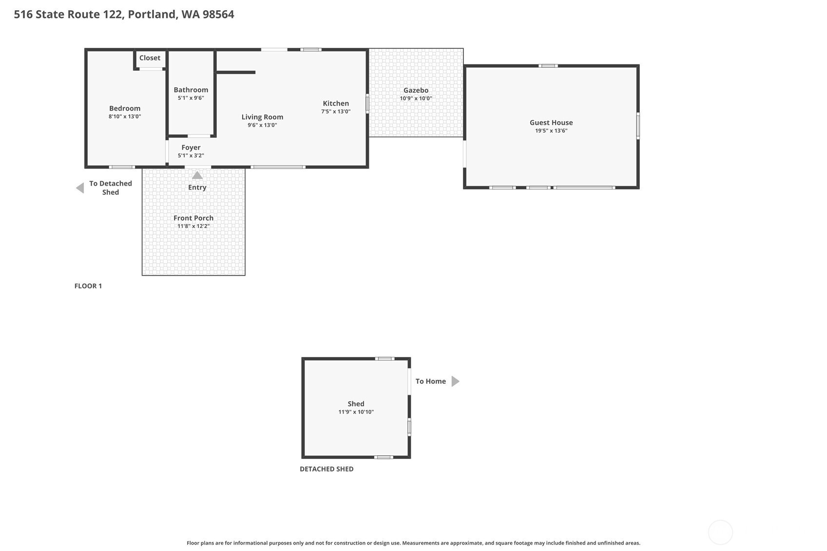
(650)533-3259This one is a fun opportunity! If you are considering downsizing your acreage, retiring or looking for a weekend getaway near the lake this country retreat might be for you. This newer home has a reduced footprint for efficient living and sits on 5.48 acres of privacy. There is a bonus guest building that expands potential living space housing a bedroom and a 1/2 bath to provide additional privacy for your guests. Additionally, there is a two bay shop/storage building for tractors and toys. Another feature of this property is a charming homestead designed building for craft projects or sitting on the covered porch and relaxing. A public boat launch is just a mile or two away offering expanded recreational options or the chance to catch a few fish for dinner. The manageable private acreage offers expandable living space, a garden area, a dog run, and a chicken house all close to the lake and only 20 minutes to I-5. Buyer to verify all.
Listing Provided Courtesy of Willy Young, Chehalis Valley Realty
NWM2508614
Manufactured On Land
1 DOM
1
5.48 acres
1
448
2016
Lewis
Buyer To Verify
Buyer To Verify
Buyer To Verify
Residential
Manufactured On Land
Listing Provided Courtesy of Willy Young, Chehalis Valley Realty
Kasamestates data last checked: Apr 21, 2026 00:01 | Listing last modified Apr 19, 2026 12:01,
Source:
Download our Mobile app