17274 Angeline Avenue South NE

Suquamish, WA 98392

  • Bed

  • Bath

  • 0 SqFt

  • 47 DOM

  • Built:

  • Status: Active

$699,000

X

17274 Angeline Avenue South NE

Suquamish 98392

$699000

  • Bed

  • Bath

  • 0 SqFt

  • 47 DOM

  • Built:

  • Status: Active

Srinivas Kasam

CEO & Founder

(650)533-3259

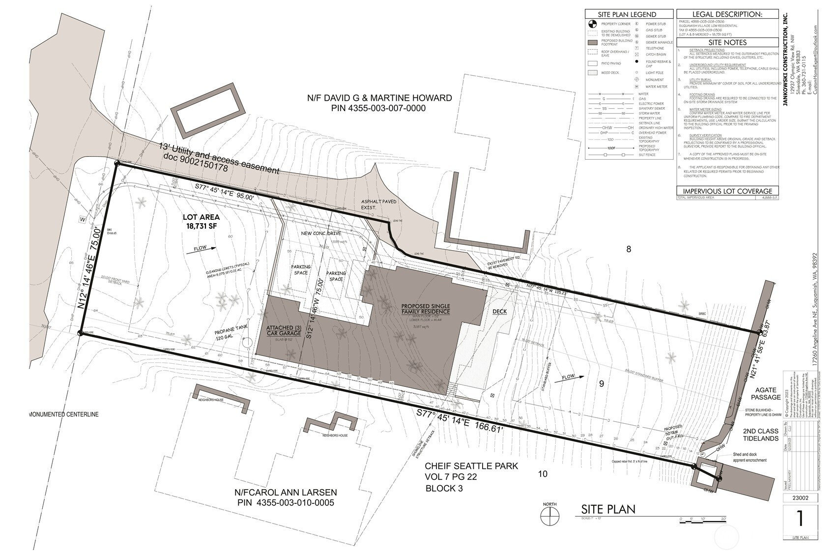
The last undeveloped waterfront home site on Suquamish’s coveted Angeline Ave is effectively shovel-ready for your new waterfront home. With due diligence completed and included, you’ll save years of headache by taking advantage of the seller’s investment. The Agate Passage shoreline is protected by a rock bulkhead with easy access to the sandy pebble beach and tidelands with mooring buoy. The property has city water, power, and a sewer connection on site. The large home site is elevated above the gently sloping grassy waterside yard, providing stunning views of the Puget Sound and Mt. Baker, while mitigating flood risk entirely. A 50-amp motorhome plug and a flat area to park allows for immediate enjoyment while building your dream home! DAHP Cultural Resource Survey (2024-06-04376) was completed and a Kitsap County Storm Drain Permit Granted (good for 5 years) in July 2024. A building permit application would have been approved by the Kitsap Building Department in 2024 for an additional fee at that time had the property owner decided to proceed with construction.

Download our Mobile app

Similar Properties

$99,000

  • Bed

  • Bath

  • 0 SqFt

  • 65 DOM

  • 0 XX NE Columbia Street, Suquamish, 98392