13277 Shoreline Drive SE

Olalla, WA 98359

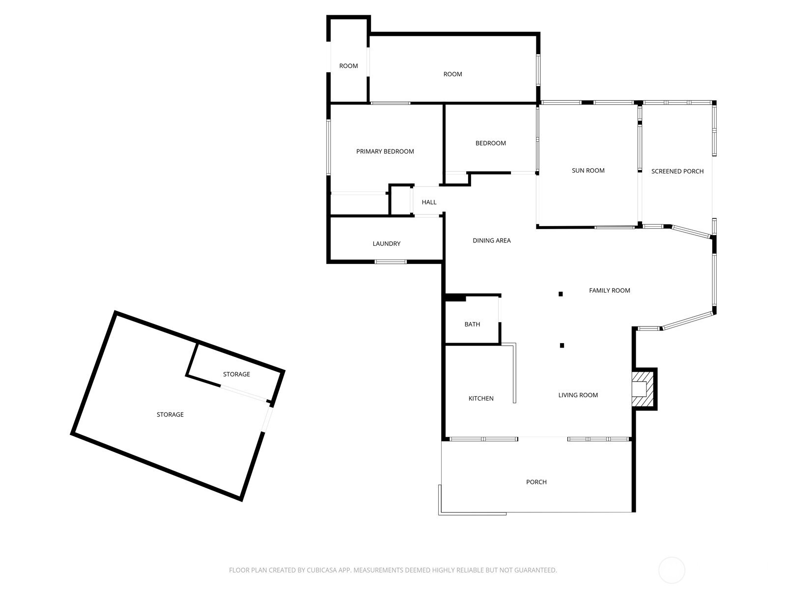
  • 2 Bed

  • 1 Bath

  • 1108 SqFt

  • 33 DOM

  • Built: 1962

  • Status: Active

$910,000

X

13277 Shoreline Drive SE

Olalla 98359

$910000

  • 2 Bed

  • 1 Bath

  • 1108 SqFt

  • 33 DOM

  • Built: 1962

  • Status: Active

Srinivas Kasam

CEO & Founder

(650)533-3259

Waterfront with stunning views! This rare and spacious 2-bedroom, 1-bathroom home lives much larger than its square footage. Features a semi-open concept living space that has been recently updated with fresh interior paint, new flooring throughout, and an updated kitchen. Offering uninterrupted views of Vashon Island and the Colvos Passage. Watch for whales, otters, and seals! 72 feet of low-bank water frontage, providing access to a private sandy beach complete tideland rights. Outdoor entertaining is easy with two decks (one pre-wired for a hot tub), a firepit, a grassy yard, and mature landscaping. For those needing additional recreational space, the property is adjacent to a lightly used community park and boat launch and pier.

Download our Mobile app

Similar Properties

$850,000

  • 3 Bed

  • 2 Bath

  • 2390 SqFt

  • 30 DOM

  • 14892 Peacock Hill Road SE, Olalla, 98359

$749,777

  • 3 Bed

  • 3.5 Bath

  • 3276 SqFt

  • 45 DOM

  • 5735 SE Alpine Road, Olalla, 98359

$935,000

  • 3 Bed

  • 2.5 Bath

  • 3300 SqFt

  • 79 DOM

  • 14444 Crescent Valley Road SE, Olalla, 98359

$648,000

  • 2 Bed

  • 2.5 Bath

  • 1524 SqFt

  • 139 DOM

  • 14091 O'Halleran Place SE, Olalla, 98359