Seattle, WA 98115
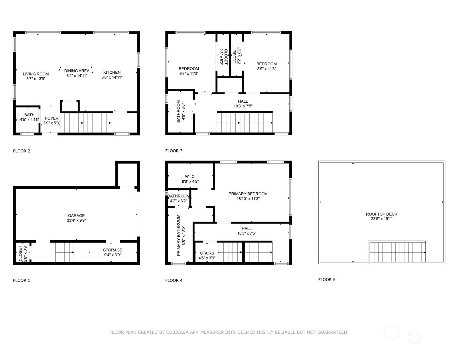
3 Bed
1.5 Bath
1563 SqFt
62 DOM
Built: 2025
$839,950
$839950
3 Bed
1.5 Bath
1563 SqFt
62 DOM
Built: 2025
CEO & Founder
(650)533-3259Where Roosevelt, Ravenna & Maple Leaf meet: Discover modern living in “The Triangle.” This brand-new 1,563 sq ft standalone home features 3BR, 2.25BA & a layout built for comfort. The primary suite offers territorial views, a walk-in closet & ensuite bath. The kitchen shines w/ white shaker cabinets, quartz counters & SS appliances. Energy-efficient mini-splits, LVP flooring & rooftop deck enhance daily living. Walk score of 84 puts Project 9, Growler Guys, Mojitos & Macrina Bakery just steps away. Heated garage w/ EV charging + off-street parking. Near Maple Leaf Park & UW and I-5 for easy commuting. **Northwest corner unit with the garage and 1 parking space off the alley.
Listing Provided Courtesy of Eric Nissen, Real Property Associates
NWM2453984
Single Family Residence
62 DOM
3
1546.38 SqFt
1.5
1563
2025
King
Buyer To Verify
Buyer To Verify
Buyer To Verify
Residential
Single Family Residence
Listing Provided Courtesy of Eric Nissen, Real Property Associates
Kasamestates data last checked: Nov 13, 2025 12:52 | Listing last modified Nov 13, 2025 13:01,
Source:
Download our Mobile app
1563
3
1
1
1.5
Flat
1,
15 - Multi Level
2025
None
None
Poured Concrete
Dishwasher(s), Disposal, Microwave(s), Refrigerator(s), Stove(s)/Range(s)
Cement Planked
Public
Sewer Connected
3940.62
Cash Out, Conventional, FHA, VA Loan
11-12-2025
62
62
Cash Out, Conventional, FHA, VA Loan
$839,950
$839,950
Nov 13, 2025 13:01
Listing courtesy of Real Property Associates.
The content relating to real estate for sale on this site comes in part from the IDX program of the NWMLS of Seattle, Washington.
Real Estate listings held by brokerage firms other than this firm are marked with the NWMLS logo, and
detailed information about these properties include the name of the listing's broker.
Listing content is copyright © 2025 NWMLS of Seattle, Washington.
All information provided is deemed reliable but is not guaranteed and should be independently verified.
Kasamestates data last checked: Nov 13, 2025 12:52 | Listing last modified Nov 13, 2025 13:01.
Some properties which appear for sale on this web site may subsequently have sold or may no longer be available.
CEO & Founder
(650)533-3259Where Roosevelt, Ravenna & Maple Leaf meet: Discover modern living in “The Triangle.” This brand-new 1,563 sq ft standalone home features 3BR, 2.25BA & a layout built for comfort. The primary suite offers territorial views, a walk-in closet & ensuite bath. The kitchen shines w/ white shaker cabinets, quartz counters & SS appliances. Energy-efficient mini-splits, LVP flooring & rooftop deck enhance daily living. Walk score of 84 puts Project 9, Growler Guys, Mojitos & Macrina Bakery just steps away. Heated garage w/ EV charging + off-street parking. Near Maple Leaf Park & UW and I-5 for easy commuting. **Northwest corner unit with the garage and 1 parking space off the alley.