Seattle, WA 98105
8 Bed
3 Bath
1561 SqFt
1 DOM
Built: 2022
$900,000
$900000
8 Bed
3 Bath
1561 SqFt
1 DOM
Built: 2022
CEO & Founder
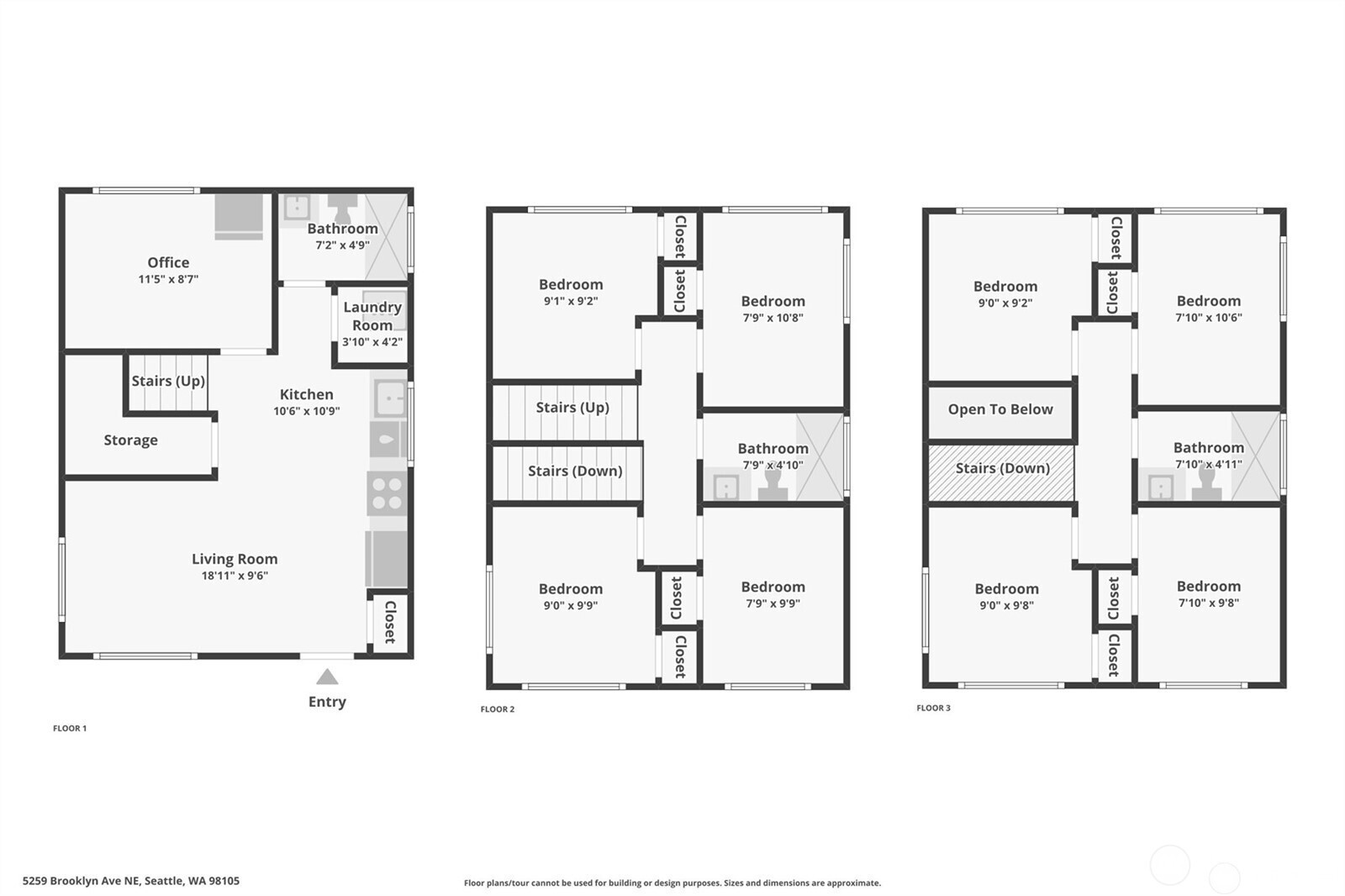
(650)533-32598-bedroom, 3-bath UW townhouse near campus, surrounded by coffee shops, restaurants, and close to the light rail station and multiple bus stops, with a Walk Score of 98. The main floor features a modern kitchen with stainless steel appliances, ample cabinetry, and a pantry that opens to the living area, plus durable LVP flooring, a dedicated study room, an additional refrigerator, a washer/dryer, and a full bathroom. Upstairs, two levels each offer 4 bedrooms and 1 bathroom. Located in one of Seattle’s most sought-after rental markets, this property presents a rare opportunity to own a high-demand investment near UW.
Listing Provided Courtesy of Torrey Morales, Real Property Associates
NWM2501222
Single Family Residence
1 DOM
8
1446.19 SqFt
3
1561
2022
King
Buyer To Verify
Buyer To Verify
Buyer To Verify
Residential
Single Family Residence
Listing Provided Courtesy of Torrey Morales, Real Property Associates
Kasamestates data last checked: Apr 03, 2026 04:15 | Listing last modified Apr 03, 2026 02:06,
Source:
Download our Mobile app
1561
8
3
0
3
Composition
15 - Multi Level
2022
None
None
Poured Concrete
Dishwasher, Disposal, Dryer, Microwave, Refrigerator, Stove(s)/Range(s), Washer
Water Heater
Wood Products
Public
Sewer Connected
8007.01
Cash, Conventional
04-02-2026
1
1
Cash, Conventional
$900,000
$900,000
Apr 03, 2026 02:06
Listing courtesy of Real Property Associates.
The content relating to real estate for sale on this site comes in part from the IDX program of the NWMLS of Seattle, Washington.
Real Estate listings held by brokerage firms other than this firm are marked with the NWMLS logo, and
detailed information about these properties include the name of the listing's broker.
Listing content is copyright © 2026 NWMLS of Seattle, Washington.
All information provided is deemed reliable but is not guaranteed and should be independently verified.
Kasamestates data last checked: Apr 03, 2026 04:15 | Listing last modified Apr 03, 2026 02:06.
Some properties which appear for sale on this web site may subsequently have sold or may no longer be available.
CEO & Founder
(650)533-32598-bedroom, 3-bath UW townhouse near campus, surrounded by coffee shops, restaurants, and close to the light rail station and multiple bus stops, with a Walk Score of 98. The main floor features a modern kitchen with stainless steel appliances, ample cabinetry, and a pantry that opens to the living area, plus durable LVP flooring, a dedicated study room, an additional refrigerator, a washer/dryer, and a full bathroom. Upstairs, two levels each offer 4 bedrooms and 1 bathroom. Located in one of Seattle’s most sought-after rental markets, this property presents a rare opportunity to own a high-demand investment near UW.