4233 S Bradford Street

Seattle, WA 98118

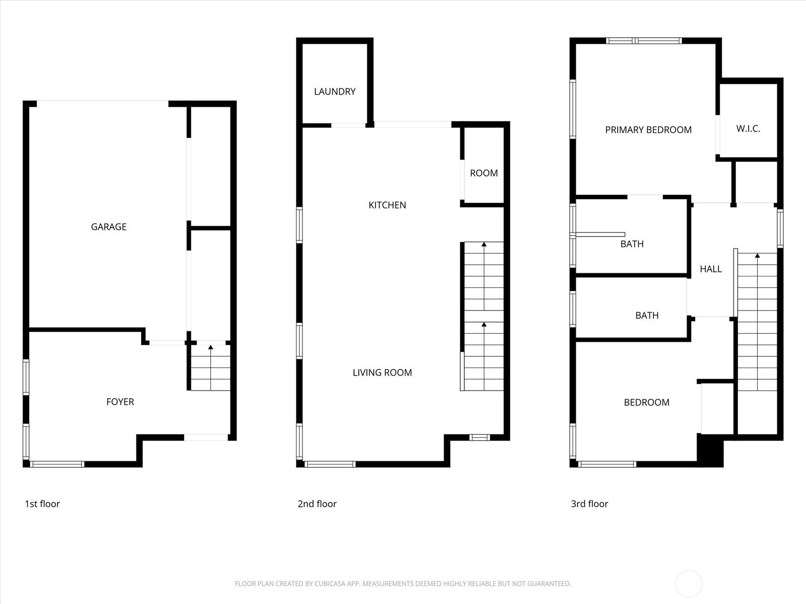
  • 2 Bed

  • 1.5 Bath

  • 1309 SqFt

  • 20 DOM

  • Built: 2026

  • Status: Active

$899,000

X

4233 S Bradford Street

Seattle 98118

$899000

  • 2 Bed

  • 1.5 Bath

  • 1309 SqFt

  • 20 DOM

  • Built: 2026

  • Status: Active

Srinivas Kasam

CEO & Founder

(650)533-3259

Introducing a new community by Garton Developments in the highly sought-after Mount Baker neighborhood. This limited collection of just three residences offers a rare opportunity to own modern new construction steps from some of Seattle’s most iconic waterfront green spaces. This thoughtfully designed home features 2 bedrooms, 2.25 baths, and a private EV-ready one-car garage, blending everyday functionality with elevated design. Inside, curated designer finishes, clean modern lines, and a smart layout create a home that feels both stylish and comfortable. Located just moments from Genesee Park and the legendary Stan Sayers Pits & Memorial Park, outdoor recreation and Lake Washington shoreline access are right outside your door. Whether it’s morning walks along the water, summer events at the hydroplane pits, or simply enjoying one of Seattle’s most scenic parks, the location delivers a lifestyle that’s hard to match. A rare opportunity in this pocket of Mount Baker—modern design, a boutique three-home community, and an unbeatable connection to Seattle’s waterfront parks. Homes Ready end of April.

Download our Mobile app

Similar Properties

$2,795,000

  • 3 Bed

  • 1.5 Bath

  • 2763 SqFt

  • 0 DOM

  • 8418 Island Drive S, Seattle, 98118

$699,000

  • 3 Bed

  • 2 Bath

  • 2420 SqFt

  • 0 DOM

  • 3925 S Americus Street, Seattle, 98118

$569,900

  • 2 Bed

  • 1 Bath

  • 740 SqFt

  • 0 DOM

  • 5720 37th Avenue S, Seattle, 98118

$985,000

  • 3 Bed

  • 2 Bath

  • 1963 SqFt

  • 0 DOM

  • 4605 49th Avenue S, Seattle, 98118