Bellevue, WA 98008
5 Bed
3.5 Bath
4300 SqFt
2 DOM
Built: 1987
$2,499,999
$2499999
5 Bed
3.5 Bath
4300 SqFt
2 DOM
Built: 1987
CEO & Founder
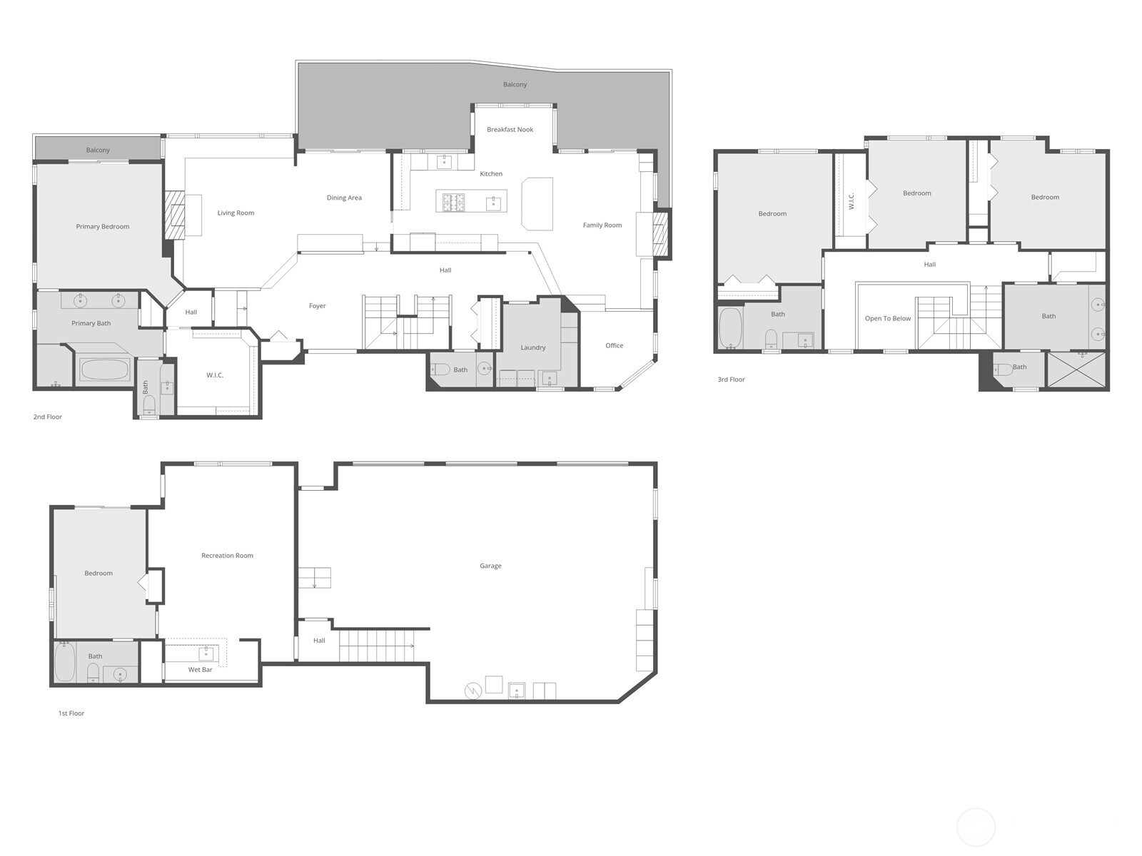
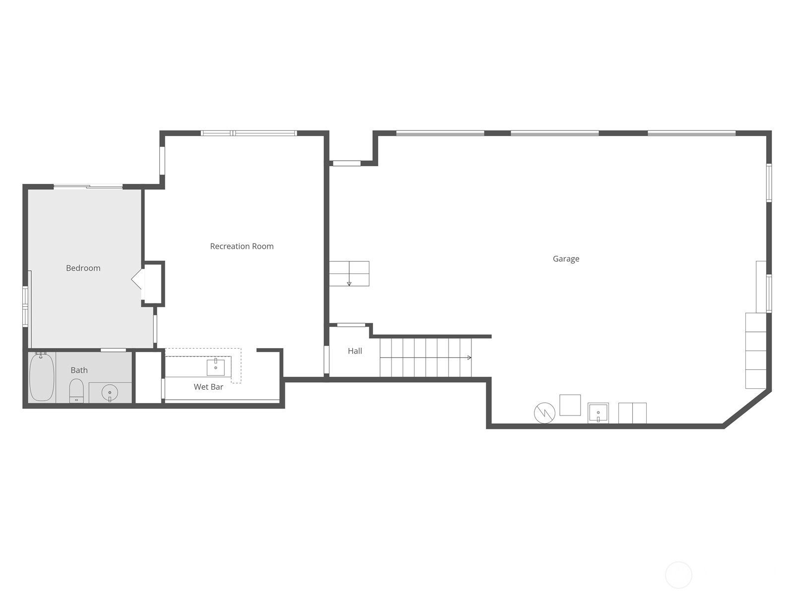
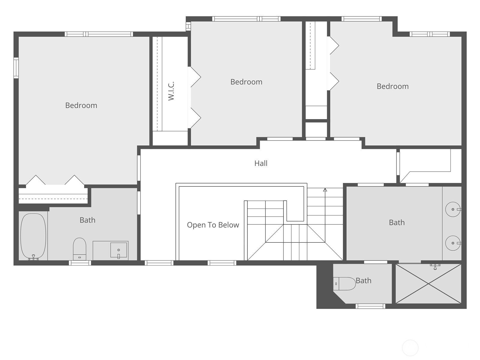
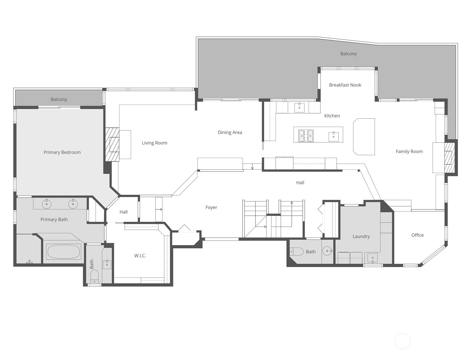
(650)533-3259This remarkable home overlooking Phantom Lake offers over 4,300 square feet of thoughtfully designed living space with territorial and lake views from nearly every room. Set on a quiet cul-de-sac, enjoy a sense of peace and privacy while remaining minutes from major highways and all Bellevue has to offerFive bedrooms and 4.25 bathrooms provide exceptional flexibility featuring a main level primary suite on its own wing of the home and an expansive lower level ideal for guests or potential ADU . The kitchen features dual islands, high ceilings, and a beautiful dining nook, while the sprawling back deck extends the living space outdoors. Three-car garage, ample parking, top-rated Bellevue schools, meticulously maintained, and pre-inspected.
Listing Provided Courtesy of Dillon Pulos, Icon Group
NWM2465758
Single Family Residence
2 DOM
5
0.27 acres
3.5
4300
1987
King
Spiritridge Ele
Tillicum Mid
Sammamish Snr H
Residential
Single Family Residence
Listing Provided Courtesy of Dillon Pulos, Icon Group
Kasamestates data last checked: Jan 12, 2026 20:14 | Listing last modified Jan 11, 2026 04:00,
Source:
Download our Mobile app
4300
5
3
1
3.5
Composition
3,
18 - 2 Stories w/Bsmnt
1987
Daylight, Finished
Daylight, Finished
Poured Concrete, Sla
Dishwasher(s), Disposal, Microwave(s), Refrigerator(s), See Remarks, Stove(s)/Range(s), Trash Compac
Bath Off Primary, Built-In Vacuum, Ceiling Fan(s), Double Pane/Storm Window, Dining Room, French Doo
Wood
Public
Sewer Connected
17858
Cash Out, Conventional, FHA, VA Loan
01-08-2026
2
2
Cash Out, Conventional, FHA, VA Loan
$2,499,999
$2,499,999
Jan 11, 2026 04:00
Listing courtesy of Icon Group.
The content relating to real estate for sale on this site comes in part from the IDX program of the NWMLS of Seattle, Washington.
Real Estate listings held by brokerage firms other than this firm are marked with the NWMLS logo, and
detailed information about these properties include the name of the listing's broker.
Listing content is copyright © 2026 NWMLS of Seattle, Washington.
All information provided is deemed reliable but is not guaranteed and should be independently verified.
Kasamestates data last checked: Jan 12, 2026 20:14 | Listing last modified Jan 11, 2026 04:00.
Some properties which appear for sale on this web site may subsequently have sold or may no longer be available.
CEO & Founder
(650)533-3259This remarkable home overlooking Phantom Lake offers over 4,300 square feet of thoughtfully designed living space with territorial and lake views from nearly every room. Set on a quiet cul-de-sac, enjoy a sense of peace and privacy while remaining minutes from major highways and all Bellevue has to offerFive bedrooms and 4.25 bathrooms provide exceptional flexibility featuring a main level primary suite on its own wing of the home and an expansive lower level ideal for guests or potential ADU . The kitchen features dual islands, high ceilings, and a beautiful dining nook, while the sprawling back deck extends the living space outdoors. Three-car garage, ample parking, top-rated Bellevue schools, meticulously maintained, and pre-inspected.