2030 S Kent Des Moines Road

Des Moines, WA 98198

  • 6 Bed

  • 4 Bath

  • 3240 SqFt

  • 1 DOM

  • Built: 1959

  • Status: Active

$698,000

X

2030 S Kent Des Moines Road

Des Moines 98198

$698000

  • 6 Bed

  • 4 Bath

  • 3240 SqFt

  • 1 DOM

  • Built: 1959

  • Status: Active

Srinivas Kasam

CEO & Founder

(650)533-3259

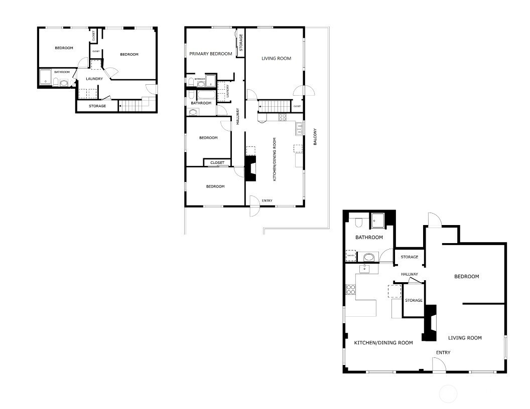
Incredible opportunity to own a truly unique home in highly sought-after Des Moines. It could be used as a Triplex, duplex, or perfect accommodations already for multi-generational living. Current setup: 4 tenants upstairs (including 1 in the "living room"). 2 tenants downstairs in each bedroom enjoy a nicely updated 3/4 bath, leading up to the shared kitchen/dining area. And 1 tenant occupies the ADU/MIL large studio apartment downstairs, which features a beautifully updated kitchen w/quartz counters and its own entrance. That's 2 kitchens, 2 water heaters, 3 washer/dryers and 7 rental incomes! All tenants are currently on month-to-month leases. Main/upper level of the home has a large, open kitchen and dining area that leads out to the oversized entertainment deck. The living room and 3 bedrooms feature hardwood floors. Primary bedroom has its own 3/4 bath. Port package windows and 2 wood burning fireplaces. Plenty of parking for everyone including a large carport w/plenty of shop space. Centrally located less than 1 mile to Highline College, city parks, local shopping, schools, I-5 access, new Link light rail station, bus line & the Marina and all that Downtown Des Moines has to offer. This unique home offers so much and needs just a little TLC to shine bright once again. Mortgage savings may be available for buyers of this listing.

Download our Mobile app

Similar Properties

$450,000

  • 3 Bed

  • 1.5 Bath

  • 1000 SqFt

  • 1 DOM

  • 21222 33rd Ave S, Sea Tac, 98198

$395,000

  • 3 Bed

  • 1.5 Bath

  • 1262 SqFt

  • 3 DOM

  • 23712 13th Place S #1006, Des Moines, 98198

$1,350,000

  • 3 Bed

  • 3 Bath

  • 2340 SqFt

  • 4 DOM

  • 21550 1st Court S, Normandy Park, 98198

$600,000

  • 3 Bed

  • 1.5 Bath

  • 1240 SqFt

  • 7 DOM

  • 927 S 240th Place, Des Moines, 98198