$550000
Bed
Bath
0 SqFt
185 DOM
Built: 1940
CEO & Founder
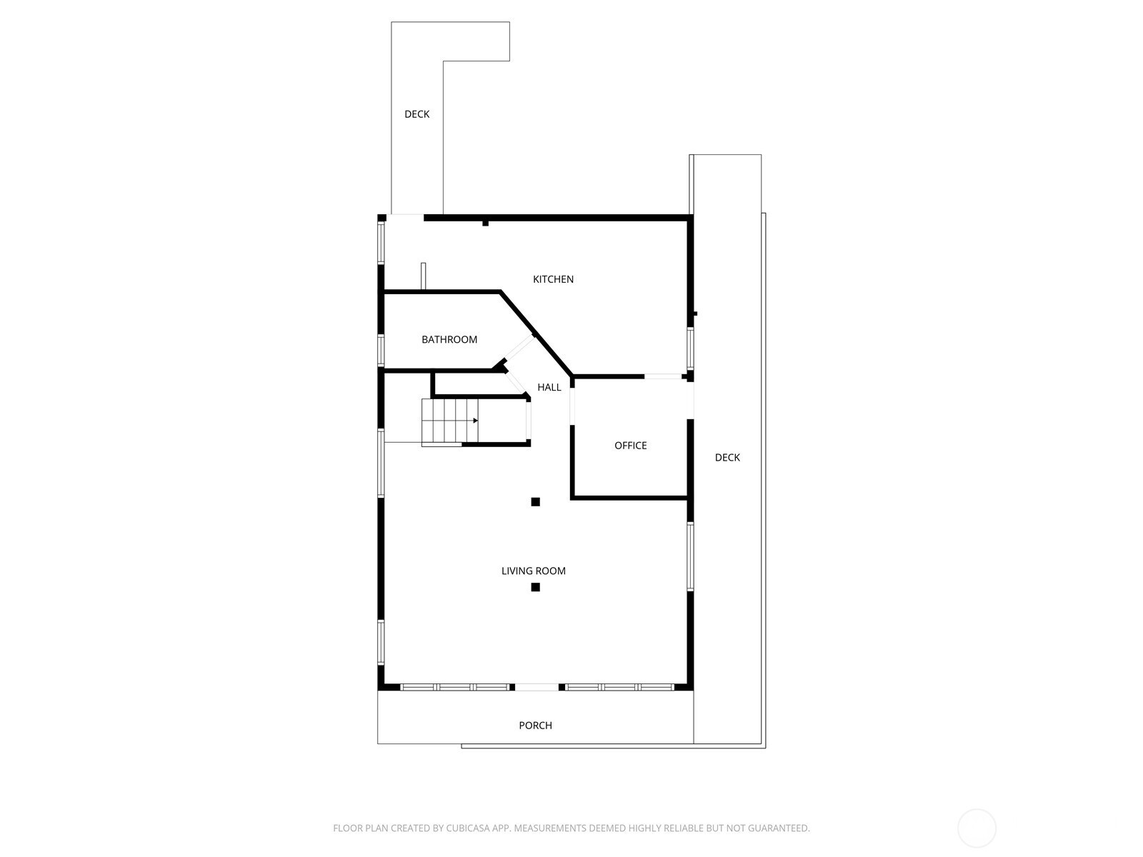
(650)533-3259Have you been looking for a versatile commercial space to open that dream business, less than a mile from the Pacific Ocean?? Look no further! Main Street in Pacific Beach is undergoing growth and change in recent years, with a very bright future! Pacific Beach is desirable not only for its incredible beach access and views of the Pacific, but also for its close proximity to the New Urbanist community of Seabrook, which draws in thousands of tourists year round. Pacific Beach offers opportunity with a much smaller price tag, and no barrier to entry. The 40 Main space has so much to offer with an open floorplan on the main level, supported by a partial commercial kitchen in the rear. You can turn this main floor square footage into retail space for whatever you might have in mind, OR the entire space could be re-imagined for nighty rental use. There are two rooms upstairs that can either work as bedrooms, or be rented out as offices. Upstairs has an exterior entrance & 3/4 bath. You could even live upstairs & run a business downstairs. Located in an Opportunity Zone, maximize revenue and take advantage of the tax benefits of opening a business or just owning commercial property at this walkable, picturesque little beach town!
Listing Provided Courtesy of Jaclyn Stevenson, Spivey Realty Group
NWM2486374
Commercial Industrial
185 DOM
3672.11 SqFt
0
1940
Busines
Grays Harbor
Commercial Sale
Commercial Industrial
Listing Provided Courtesy of Jaclyn Stevenson, Spivey Realty Group
Kasamestates data last checked: Mar 16, 2026 00:54 | Listing last modified Mar 14, 2026 00:13,
Source:
Download our Mobile app