1018 E Delilah Rose Lane

Westport, WA 98595

  • 2 Bed

  • 1.5 Bath

  • 900 SqFt

  • 2 DOM

  • Built: 2026

  • Status: Active

$599,000

X

1018 E Delilah Rose Lane

Westport 98595

$599000

  • 2 Bed

  • 1.5 Bath

  • 900 SqFt

  • 2 DOM

  • Built: 2026

  • Status: Active

Srinivas Kasam

CEO & Founder

(650)533-3259

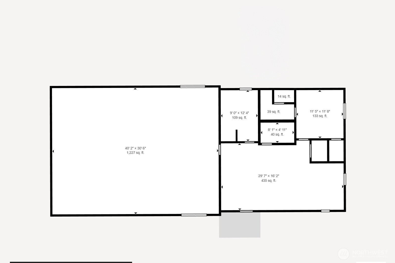
Presale! Pick your colors! Discover the ultimate blend of modern sophistication, functionality, and stunning views in this exceptional 30x70 shop in Westport, WA. Built with 6x8 posts, 19' eaves, and insulated walls, the shop features two 14x14 power-operated doors, a 5-inch concrete slab, 26-gauge metal siding, and smart amenities like WiFi-controlled lighting and heating, Ring cameras, and a 30-amp RV plug. Natural light pours through four high-set windows, while a 4x30 Timber Tech balcony offers breathtaking water and sky views. Above, a 900 sq. ft. smart apartment boasts 2 bedrooms, 2 baths, vaulted ceilings, quartz countertops, tiled master showers, and a spiral staircase connecting to the shop below. An additional full bathroom with its own water heater adds convenience. Outdoor highlights include a 6x10 TimberTech deck with 5' cladded steps, perfect for soaking in the gorgeous coastal scenery. Situated in picturesque Westport, this property offers a rare chance to combine work, play, and serene living. Don't miss out—your dream space. Photos are of like build on a different lot.

Download our Mobile app

Similar Properties

$323,000

  • 3 Bed

  • 1 Bath

  • 792 SqFt

  • 11 DOM

  • 2316 S Pleasant Drive, Westport, 98595

$397,500

  • 2 Bed

  • 2 Bath

  • 1072 SqFt

  • 13 DOM

  • 2803 S Woodhill Court, Westport, 98595

$379,900

  • 3 Bed

  • 2 Bath

  • 1360 SqFt

  • 14 DOM

  • 839 N 1st Street, Westport, 98595

$1,600,000

  • 5 Bed

  • 2.5 Bath

  • 2582 SqFt

  • 69 DOM

  • 1409 S Cohasset Crest, Westport, 98595