Washougal, WA 98671
5 Bed
0.5 Bath
2762 SqFt
97 DOM
Built: 1950
$465,000
$465000
5 Bed
0.5 Bath
2762 SqFt
97 DOM
Built: 1950
CEO & Founder
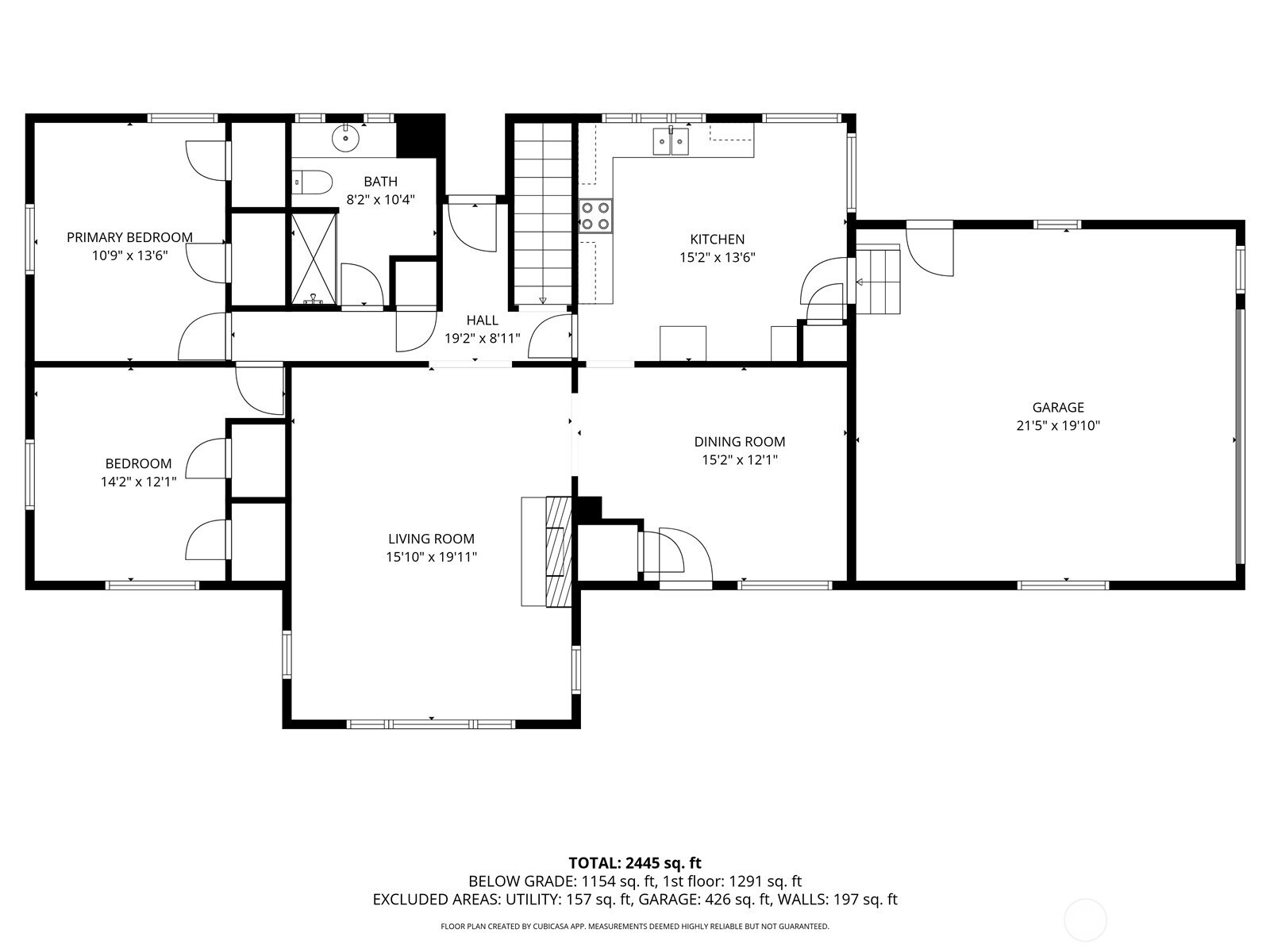
(650)533-3259Additional Price Reduction – Really Exceptional Value – Seller must sell!This Mid-Century Modern home sits on a large corner lot and is ready for your updates, featuring coved ceilings and original hardwood floors.Much larger than it appears, the home offers 2,762 sq ft total, with 1,381 sq ft on each level, thanks to a full, usable, mostly finished basement. The 2+ bedrooms listed downstairs are NOT conforming. (Buyer will need to install window wells with larger windows to safely use as conforming bedrooms.) There is space to convert the half bath to a full bath, making the floor plan well-suited for multigenerational living or a potential ADU-style setup.Updates include a new roof, gutters, and furnace (2018), bathroom remodel (2023), and quality vinyl windows. This home offers flexibility, space, and value—priced accordingly and ready for a quick sale. Updates include a new roof, gutters, and furnace (2018), bathroom remodel (2023), and quality vinyl windows. This solid home offers flexibility, space, and value—priced accordingly and ready for a quick sale.
Listing Provided Courtesy of Leann C. Collins, Leann Celeste Collins
NWM2445341
Single Family Residence
97 DOM
5
8276.4 SqFt
0.5
2762
1950
Clark
Hathaway Elem
Jemtegaard Mid
Washougal High
Residential
Single Family Residence
Listing Provided Courtesy of Leann C. Collins, Leann Celeste Collins
Kasamestates data last checked: Feb 28, 2026 19:31 | Listing last modified Feb 24, 2026 04:08,
Source:
Download our Mobile app
2762
2/Gas
5
0
1
0.5
Composition
16 - 1 Story w/Bsmnt.
1950
Partially Finished
Partially Finished
Stove(s)/Range(s)
Dining Room, Fireplace, Water Heater
Metal/Vinyl
Public
Sewer Connected
4736.95
Cash, Conventional, FHA, State Bond, VA Loan
11-13-2025
97
97
Cash, Conventional, FHA, State Bond, VA Loan
$500,000
$500,000
Feb 24, 2026 04:08
Listing courtesy of Leann Celeste Collins.
The content relating to real estate for sale on this site comes in part from the IDX program of the NWMLS of Seattle, Washington.
Real Estate listings held by brokerage firms other than this firm are marked with the NWMLS logo, and
detailed information about these properties include the name of the listing's broker.
Listing content is copyright © 2026 NWMLS of Seattle, Washington.
All information provided is deemed reliable but is not guaranteed and should be independently verified.
Kasamestates data last checked: Feb 28, 2026 19:31 | Listing last modified Feb 24, 2026 04:08.
Some properties which appear for sale on this web site may subsequently have sold or may no longer be available.
CEO & Founder
(650)533-3259Additional Price Reduction – Really Exceptional Value – Seller must sell!This Mid-Century Modern home sits on a large corner lot and is ready for your updates, featuring coved ceilings and original hardwood floors.Much larger than it appears, the home offers 2,762 sq ft total, with 1,381 sq ft on each level, thanks to a full, usable, mostly finished basement. The 2+ bedrooms listed downstairs are NOT conforming. (Buyer will need to install window wells with larger windows to safely use as conforming bedrooms.) There is space to convert the half bath to a full bath, making the floor plan well-suited for multigenerational living or a potential ADU-style setup.Updates include a new roof, gutters, and furnace (2018), bathroom remodel (2023), and quality vinyl windows. This home offers flexibility, space, and value—priced accordingly and ready for a quick sale. Updates include a new roof, gutters, and furnace (2018), bathroom remodel (2023), and quality vinyl windows. This solid home offers flexibility, space, and value—priced accordingly and ready for a quick sale.